Wystaw opinię o produkcie
Projekt, plan oświetlenia sali sprzedaży LED
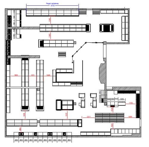
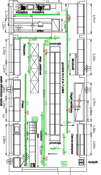
Po przesłaniu mailem planu rozmieszczenia mebli na sali sprzedaży sklepu (plik JPG, PDF, DWG, DXF) projektant przygotuje dla Ciebie profesjonalny plan oświetlenia sklepu. Plan będzie uwzględniał właściwe natężenie światła na sali sprzedaży - doświetlenie najważniejszych stref (stoiska z produktami świeżymi), oprawy awaryjne i ewakuacyjne.
Produkty uzupełniające to wygodny sposób na skompletowanie zamówienia o produkty idealnie pasujące do przeglądanego produktu!
Gdy dodasz produkt uzupełniający klikając "+ Dodaj", zostanie on zarezerwowany i poczeka aż dodasz główny produkt do koszyka. Oznacza to, że produkt komplementarny:
- Nie trafia od razu do koszyka - produkt jest tymczasowo zarezerwowany
- Zostanie dodany automatycznie gdy dodasz główny produkt do koszyka
- Możesz dodać kilka produktów - wszystkie trafią razem do koszyka
Przykład: Wybierasz fotel przeglądając jego kartę produktu, a w produktach komplementarnych zaznaczasz do kompletu poduszkę + stolik. Gdy klikniesz "Dodaj do koszyka" przy fotelu, wszystkie 3 produkty trafią razem do koszyka.
Ceny w podsumowaniu są orientacyjne i mogą się zmienić w zależności od wybranej konfiguracji głównego produktu.
KOSZT DOSTAWY - wybierz w "polu wyboru" przy zdjęciu produktu
Koszty dostawy wybranego produktu
Cena dostawy dotyczy tego produktu (w wybranym wariancie - jeśli dotyczy). Może się ona zmienić po dodaniu innych produktów do koszyka.
Kod produktu: For projekt oświetlenia
Zapytaj o produkt
Administratorem danych osobowych jest formula, Jan Szywała. Przetwarzamy je w celu przesłania odpowiedzi na zapytanie. Więcej informacji dotyczących przetwarzania danych osobowych znajduje się w polityce prywatności.
Udostępnianie karty produktu
Opis
Zadzwoń - zapytaj jak nie płacić za projekt: tel.: 602102403
Po przesłaniu mailem planu rozmieszczenia mebli na sali sprzedaży sklepu (plik DWG, DXF) projektant przygotuje dla Ciebie profesjonalny plan oświetlenia sklepu. Plan będzie uwzględniał właściwe natężenie światła na sali sprzedaży - doświetlenie najważniejszych stref (stoiska z produktami świeżymi), oprawy awaryjne i ewakuacyjne.
Dodatkowo przygotuję kompletną wycenę oświetlenia sklepu w 2 wariantach:
1/ Na bazie oświetlenia LED - wersja profesjonalna
2/ Na bazie oświetlenia LED - wersja ekonomiczna
Jeśli zdecydujesz się na zakup oświetlenia - za projekt nic nie zapłacisz, jeśli nie - zapłacisz jedynie 79 zł brutto.
Dostawa
KOSZT DOSTAWY - wybierz w "polu wyboru" przy zdjęciu produktu
Koszty dostawy wybranego produktu
Cena dostawy dotyczy tego produktu (w wybranym wariancie - jeśli dotyczy). Może się ona zmienić po dodaniu innych produktów do koszyka.
Opinie
Jeśli dodałeś/-aś recenzję, a nie pojawiłą się na liście, być może oczekuje na moderację.
Wystaw opinię o produkcie
Zwrot
Potrzebujesz pomocy?
Przed wysłaniem zapytania zajrzyj do sekcji "Częste pytania", w której podane są odpowiedzi na najczęściej występujące pytania, związanie z zakupami.
Przejdź do bloga.
Jan Szywała - telefon: +48 602 102 403
Michał Szywała - telefon: +48 794 186 456
Dział handlowy:
Magda +48 797 630 600 (w godzinach 8 -15)
Paula +48 571 513 288 (w godzinach 9 -16)
Wybierz dogodną dla Ciebie metodę kontaktu.
| Skorzystaj z: | formularza kontaktowego |
| Wyślij email: | biuro@eformula.pl |
| Zadzwoń: | +48 602 102 403 |